我们非常重视您的个人隐私,当您访问我们的网站时,请同意使用的所有cookie。有关个人数据处理的更多信息可访问《隐私政策》

穿越岁月 沉浸式品牌之旅的打开方式 | 凡拓数创×招商蛇口

2022.08.04


岁序常易,华章日新

紫气东来,鼓荡改革风帆


从“六朝古都”迈向“科创之城”,南京在同一片土地诉说着不同时代的发展故事。南京与招商蛇口,正是新时代的共进者。


紫金智谷人工智能产业园,便是南京在历史文化积淀中迸发全新势能的具体表现。这是一座以“人工智能”和“互联网+”为主导产业的创新科技园,也是招商蛇口在南京的首个AI智能总部园,专注AI智能、科技信息等新兴产业,打造科技企业集聚区。


图片来源:mooool木藕设计网


依托着国家战略规划和区域核心腹地优势,紫金智谷已形成具有智能产业外溢与资源辐射齐头并进的智能产业生态社区。如今正带着一座城市对科技创新的渴望,逐浪而行。


图片来源网络


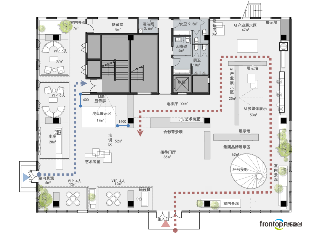
招商蛇口在这个占地4.23万㎡产业园所要布置的项目展厅,也将是传递企业品牌力量的重要窗口。


凡拓数创则通过巧妙的空间设计、多媒体的艺术化运用、探索式交互体验,全方位、动态化的展现该项目内涵及招商品牌文化,以品牌的风帆守护企业的远航。


▲招商南京创马紫金智谷总部园区展厅实拍



 穿透岁月

FRONTOP

 解读企业基因


用最简约的品牌概念提炼空间的姿态,展厅整体空间风格偏素雅、简约,塑造“大气磅礴”的感官体验。


参考示意图


辅以科技感的灯带、灯箱等,生态与艺术造型共同点缀空间,形成对比,形成了一个兼具历史厚重感与“艺术数字化设计”现代感的品牌空间。


参考示意图


空间结构上,整个展示空间划分为品牌、项目、产业服务与展示三大部分,做到科学合理的布局得当,分割有致



品牌区作为整个展示区入口最先映入眼帘的位置,需通过独特的展陈形式体现品牌形象与展区风格。


参考示意图

现场成果图


悬挂艺术装置构成“风帆”

盘点“大事记”追溯招商局集团的光辉历程

时间轨迹的符号化打造视觉冲击

展示 “招商血脉- 蛇口基因”的绵延流淌


构思示意图


近似于箭头的“风帆”引导参观者后续的参观方向,形成视觉逻辑的连贯性,亦是展项动线规划里的一个小巧思。



箭头所指方向构筑招商局集团发展大事件矩阵,一个个高光时刻集中彰显了品牌力量。


千层玻璃构成“紫金智谷”立体艺术装置


远观视角下,一体机与拼接大屏以统一的动态屏保构成“浪潮”,其中一体机展现集团三大业务,拼接大屏播放集团宣传片。



  AI无界 

FRONTOP

 对话品牌故事



参观者走进触发红外感应

激活对应区域的屏幕进行交互



互动飞屏墙面通过灯带勾勒出AI科技电路

操作台被触动即与大屏交互

灯带将以动态光线汇聚向屏幕

体验者直接感受科技赋能的仪式感、互动感



内容体验上,定点触控即可查询观看紫金智谷项目及集团各项业务布局,用数字化创意构建画面内容,更利于信息的快速接收。


通过这一互动设计,展现了招商蛇口集团锐意创新,在园区服务、AI产业等各领域积极开拓的新版图。



为营造更沉浸式的观展体验,凡拓数创采用互动投影的形式,参观者可以通过触摸相应节点进行趣味互动


乐趣十足的探索式交互体验


船只在历史发展中不断演进升级的过程,对应招商全生命周期金融服务体系的发展历程,两者结合进行趣味性演绎,通过交互体验使不同动态元素按步骤呈现,让人印象深刻。



全维解读

FRONTOP

助力扬帆启航


在时间沉淀下,招商集团历史故事与品牌文化背后蕴含丰富内涵和意义,凡拓数创对其进行全面解读及重新梳理,在保证展示空间整体性与统一风格的前提下,分析最合理的空间规划,选取更适合的展项形式与展示内容相结合


沉浸式的科技体验中,观展者接收到的是品牌价值与意义的双重输出,从而对招商品牌、项目价值、产业服务的表与里皆有了更深刻了解。


动态灯箱打造紫金智谷主题墙


灯箱前以立体背光造型墙打造南京城市天际线,寓意项目与城市的关系。



立体艺术造型墙对马群片区进行详细的介绍,并体现紫金智谷与马群片区的关系。



在数字化时代和智能科技的驱动下,数字展厅得以摆脱固有的僵化、枯燥的展示形式,将企业品牌实力与项目成果呈现于观众眼前。



南京紫金智谷总部园展厅多媒体展项的打造,通过凡拓数创定制化的创意策划服务,以数字化互动设备充分展示企业特色,让客户拥有身临其境的互动参观体验,行之有效地加强企业与客户之间的沟通,赋能园区招商引资




联系我们

shipinhao_kantuwang-fuben.jpg

微信扫一扫

享一对一咨询

电话咨询

400-888-3522